About 4656 Southern Valley Loop
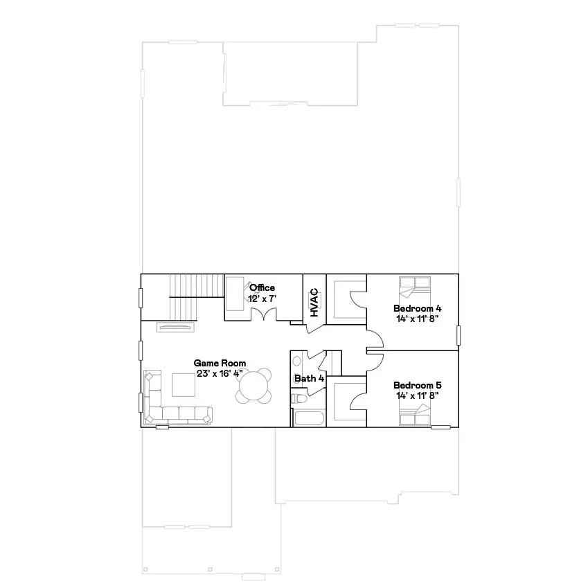
BRAND NEW HOME!! - COMPLETE MOVE IN READY!! ON GOLF COURSE!! - Exuding elegance, this expansive two-story home boasts dual owner’s suites and gracious room to grow. Down the foyer is an open-plan family room which has direct access to the cozy dining room, well-equipped kitchen and attached lanai. On the same level are a secondary bedroom suite and the dual owner’s suites, situated at opposite sides of the home. The second floor is occupied by an exciting game room, a private office and two remaining bedrooms. A three-car garage finishes this floorplan. Interior photos are different from the actual model disclosed being built. Southern Hills is a gated masterplan community located in Brooksville, FL. Surrounded by beautiful rolling hills and panoramic views, homeowners experience lavish resort-style living with luxurious amenities such as a pool and fitness center, as well as the opportunity to become a member of the private 18-hole Pete Dye Signature Golf Course and resort-style Golf Clubhouse. The local area is rich with great breweries, wineries and dining options, along with gorgeous hiking and biking trails in nearby nature preserves and parks.
Features of 4656 Southern Valley Loop
| MLS® # | TB8306603 |
|---|---|
| Price | $709,900 |
| Sold Price | $699,900 |
| Sold Date | July 28th, 2025 |
| Bedrooms | 5 |
| Bathrooms | 5.00 |
| Full Baths | 4 |
| Half Baths | 1 |
| Square Footage | 3,890 |
| Acres | 0.24 |
| Year Built | 2025 |
| Type | Residential |
| Sub-Type | Single Family Residence |
| Status | Sold |
Listing Details
| Office | LENNAR REALTY |
|---|
Listing Map
Neighborhood Information for 4656 Southern Valley Loop
Low Residential Turnover
Statistics
Number of Listings
Population Age
Home Listings Prices
Nearby Schools
| Great Schools | School Name | Distance | |
|---|---|---|---|
|
Queen Of All Sts. Academy Catholic - 1St Grade to 12Th Grade - Closest Elementry School |
3 Miles | |
|
Hearthstone Christian School Private - 3Rd Grade to 12Th Grade |
3 Miles | |
|
Moton Elementary School Public - Preschool to 5Th Grade |
3 Miles | |
|
Hernando Christian Academy Private - Preschool to 12Th Grade - Closest Middle School |
3 Miles | |
|
Brooksville Engineering, Science And Technology (B Public - 6Th Grade to 8Th Grade |
3 Miles | |
|
Chocachatti Elementary School Public - Kindergarten to 5Th Grade |
4 Miles | |
|
Nature Coast Technical High School Public - 9Th Grade to 12Th Grade - Closest High School |
4 Miles |
School data provided by GreatSchools
