About 313 Corso Loop
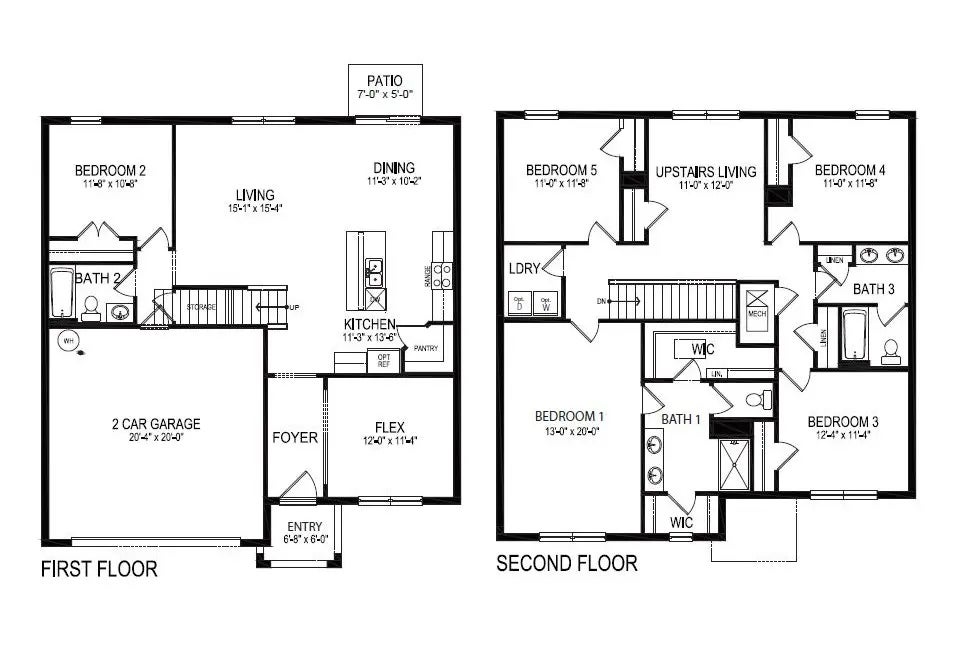
Under Construction. Find all the space you need in our popular two-story Hayden floorplan in Villamar, one of our communities in Winter Haven, Florida. Inside this 5-bedroom, 3-bathroom home, you’ll find 2,601 square feet of flexible living space and a two-car garage. Step thru the front foyer and you're greeted with a flex room designed for work or play. Make your way to the kitchen on the first floor, which overlooks the living, dining room and slider to the backyard patio. The kitchen features a center island with room for seating, plentiful cabinetry, quartz countertops, stainless steel appliances and a walk-in pantry which are sure to both turn heads and make meal prep easy. Guests can pull up a seat in this functional space. One of four bedrooms is located on the first floor and at the back of the home for privacy. As we head up to the second floor, we are greeted with the primary bedroom that features an en suite bathroom as well as three additional bedrooms that surround a second living area, a full bathroom, and a laundry area. Whether these rooms become bedrooms, office spaces, or other bonus rooms, there is sure to be a place for all. Like all homes in Villamar, the Hayden includes all concrete block construction and also smart home technology, which allows you to control your home anytime with your smart device while near or away. Contact us today and find your home at Villamar. *Photos are of similar model but not that of the exact house. Pictures, photographs, colors, features, and sizes are for illustration purposes only and will vary from the homes as built. Home and community information including pricing, included features, terms, availability, and amenities are subject to change and prior sale at any time without notice or obligation. Please note that no representations or warranties are made regarding school districts or school assignments; you should conduct your own investigation regarding current and future schools and school boundaries.*
Features of 313 Corso Loop
| MLS® # | O6271985 |
|---|---|
| Price | $358,990 |
| Sold Price | $353,490 |
| Sold Date | May 16th, 2025 |
| Bedrooms | 5 |
| Bathrooms | 3.00 |
| Full Baths | 3 |
| Square Footage | 2,601 |
| Acres | 0.13 |
| Year Built | 2025 |
| Type | Residential |
| Sub-Type | Single Family Residence |
| Status | Sold |
Listing Details
| Office | DR HORTON REALTY OF CENTRAL FLORIDA LLC |
|---|
Listing Map
Neighborhood Information for 313 Corso Loop
Stable Population, Moderate Residential Turnover
Statistics
Number of Listings
Population Age
Home Listings Prices
Nearby Schools
| Great Schools | School Name | Distance | |
|---|---|---|---|
|
Chain Of Lakes Elementary School Public - Preschool to 5Th Grade - Closest Elementry School |
1 Miles | |
|
Oasis Christian Academy Private - Kindergarten to 12Th Grade - Closest Middle School |
1 Miles | |
|
Wahneta Elementary School Public - Preschool to 5Th Grade |
2 Miles | |
|
Garden Grove Elementary School Public - Kindergarten to 5Th Grade |
3 Miles | |
|
John Snively Elementary Public - Preschool to 5Th Grade |
4 Miles | |
|
The Homeschool Connection Private - to |
4 Miles | |
|
The Vanguard School Private - 5Th Grade to 12Th Grade |
5 Miles |
School data provided by GreatSchools
