About 36071 Risa Michele Street
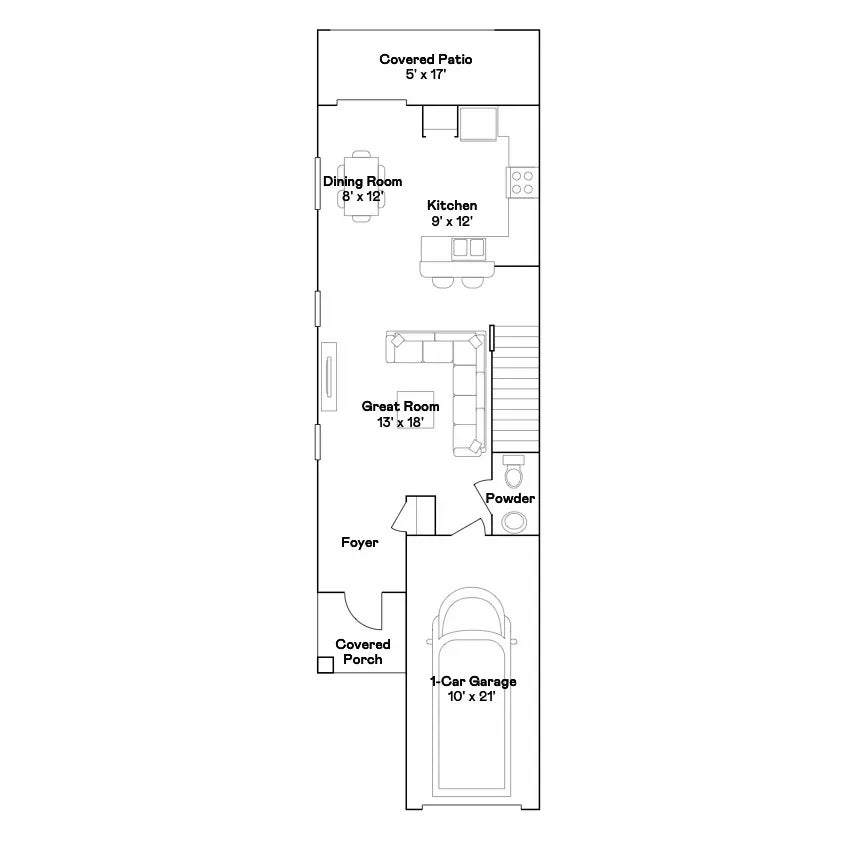
Under Construction. BRAND NEW HOME - The first floor of this two-story townhome includes the expansive Great Room which has direct access to the cozy dining room, well-equipped kitchen and attached covered patio. Upstairs, a multipurpose loft divides the lavish owner’s suite from the additional bedroom, both of which feature private bathrooms for convenience. Interior photos disclosed are different from the actual model being built. The Townes at Windsong is a new master-planned community of low-maintenance townhomes, now selling in Zephyrhills, FL. The community features a fantastic location near ample opportunities for entertainment and recreation, from shopping at the Shops at Wiregrass to dining and events at the Grove and KRATE.
Features of 36071 Risa Michele Street
| MLS® # | TB8403301 |
|---|---|
| Price | $244,940 |
| Sold Price | $237,940 |
| Sold Date | July 28th, 2025 |
| Bedrooms | 2 |
| Bathrooms | 3.00 |
| Full Baths | 2 |
| Half Baths | 1 |
| Square Footage | 1,541 |
| Acres | 0.06 |
| Year Built | 2025 |
| Type | Residential |
| Sub-Type | Townhouse |
| Status | Sold |
Listing Details
| Office | LENNAR REALTY |
|---|
Listing Map
Neighborhood Information for 36071 Risa Michele Street
Low Residential Turnover
Statistics
Number of Listings
Population Age
Home Listings Prices
Nearby Schools
| Great Schools | School Name | Distance | |
|---|---|---|---|
|
Hope Ranch Learning Academy - Zephyrhills Private - to |
0 Miles | |
|
Heritage Academy Private - Preschool to 8Th Grade - Closest Elementry School |
1 Miles | |
|
Zephyrhills Christian Academy Private - Preschool to 12Th Grade - Closest Middle School |
2 Miles | |
|
West Zephyrhills Elementary School Public - Preschool to 5Th Grade |
2 Miles | |
|
Broach Zephyrhills Private - Kindergarten to 12Th Grade |
2 Miles | |
|
Chester W. Taylor, Jr. Elementary School Public - Preschool to 5Th Grade |
2 Miles | |
|
Little Peoples Christian Daycare/Academy Private - Preschool to 8Th Grade |
2 Miles |
School data provided by GreatSchools
