About 3465 Lapis Lake Drive
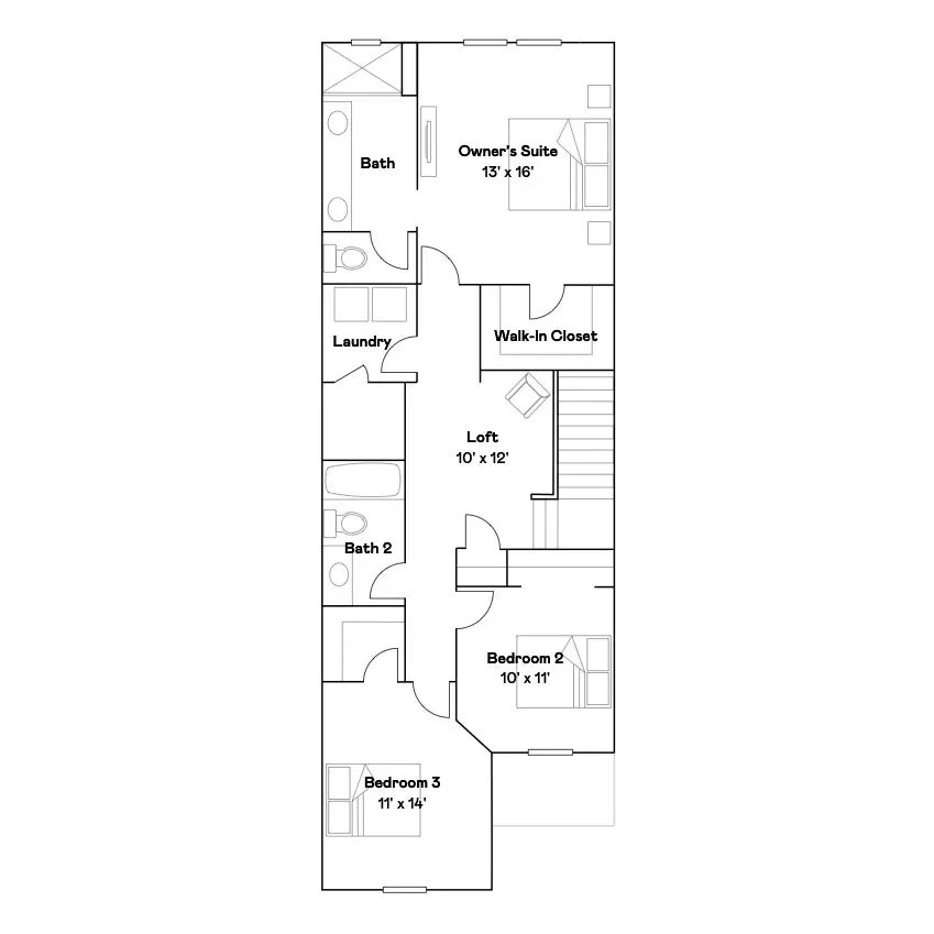
Under Construction. BRAND NEW HOME - Ideal for busy family living, this two-story townhome includes an open kitchen, dining and family room for ample space, leading to an expansive covered patio for outdoor opportunities. A loft on the second floor separates all three bedrooms, including the peaceful owner’s suite with a private full-sized bathroom and a large walk-in closet. Completing the home is a convenient one-car garage. Interior photos disclosed are different from the actual model being built. The Townes at Crystal Brook is a new community of low-maintenance townhomes for sale in Zephyrhills, FL. With a prime location near major roadways, this community provides convenient access to nearby Tampa and Wesley Chapel, along with convenient proximity to local shopping centers and healthcare facilities.
Features of 3465 Lapis Lake Drive
| MLS® # | TB8383905 |
|---|---|
| Price | $259,300 |
| Sold Price | $259,300 |
| Sold Date | August 6th, 2025 |
| Bedrooms | 3 |
| Bathrooms | 3.00 |
| Full Baths | 2 |
| Half Baths | 1 |
| Square Footage | 1,760 |
| Year Built | 2025 |
| Type | Residential |
| Sub-Type | Townhouse |
| Status | Sold |
Listing Details
| Office | LENNAR REALTY |
|---|
Listing Map
Neighborhood Information for 3465 Lapis Lake Drive
Low Residential Turnover
Statistics
Number of Listings
Population Age
Home Listings Prices
Nearby Schools
| Great Schools | School Name | Distance | |
|---|---|---|---|
|
Heritage Academy Private - Preschool to 8Th Grade - Closest Elementry School |
2 Miles | |
|
Hope Ranch Learning Academy - Zephyrhills Private - to |
2 Miles | |
|
Chester W. Taylor, Jr. Elementary School Public - Preschool to 5Th Grade |
2 Miles | |
|
Double Branch Elementary School Public - Preschool to 5Th Grade |
2 Miles | |
|
Broach Zephyrhills Private - Kindergarten to 12Th Grade |
3 Miles | |
|
West Zephyrhills Elementary School Public - Preschool to 5Th Grade |
3 Miles | |
|
Zephyrhills Christian Academy Private - Preschool to 12Th Grade - Closest Middle School |
3 Miles |
School data provided by GreatSchools
