About 34951 Kircher Drive
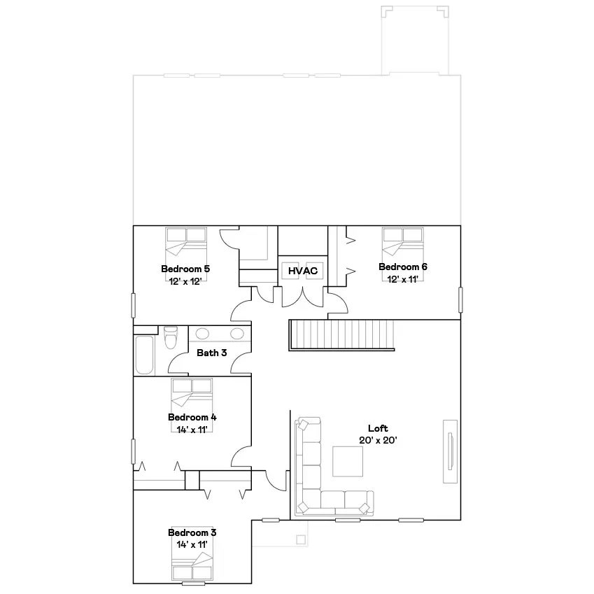
Under Construction. BRAND NEW HOME - This two-story home is the largest plan available in the collection. The first floor is brightened by a contemporary open design that unifies the kitchen, family room and dining room. Off the foyer is a versatile bedroom and flex room, while the owner's suite is nested in the back for privacy. Upstairs are the remaining four bedrooms and an expansive loft. Interior photos disclosed are different from the actual model being built. Two Rivers is a master-planned community offering brand-new homes for sale in Zephyrhills, FL. Two Rivers residents will enjoy access to future onsite amenities including a clubhouse, pool, playground, trails, fire pits and cornholes. Zephyrhills offers residents great shopping opportunities at Tampa Premium Outlets and the Shops at Wiregrass, entertainment at KRATE and endless dining options throughout the city.
Features of 34951 Kircher Drive
| MLS® # | TB8368162 |
|---|---|
| Price | $539,590 |
| Sold Price | $505,000 |
| Sold Date | July 18th, 2025 |
| Bedrooms | 6 |
| Bathrooms | 3.00 |
| Full Baths | 3 |
| Square Footage | 3,326 |
| Acres | 0.14 |
| Year Built | 2025 |
| Type | Residential |
| Sub-Type | Single Family Residence |
| Status | Sold |
Listing Details
| Office | LENNAR REALTY |
|---|
Listing Map
Neighborhood Information for 34951 Kircher Drive
Low Residential Turnover
Statistics
Number of Listings
Population Age
Home Listings Prices
Nearby Schools
| Great Schools | School Name | Distance | |
|---|---|---|---|
|
Chester W. Taylor, Jr. Elementary School Public - Preschool to 5Th Grade - Closest Elementry School |
1 Miles | |
|
Double Branch Elementary School Public - Preschool to 5Th Grade |
1 Miles | |
|
Heritage Academy Private - Preschool to 8Th Grade - Closest Middle School |
2 Miles | |
|
Hope Ranch Learning Academy - Zephyrhills Private - to |
3 Miles | |
|
New River Elementary School Public - Kindergarten to 5Th Grade |
3 Miles | |
|
Zephyrhills Christian Academy Private - Preschool to 12Th Grade - Closest High School |
3 Miles | |
|
Wiregrass Elementary School Public - Preschool to 5Th Grade |
4 Miles |
School data provided by GreatSchools
