About 4734 Bold Peacock Bend
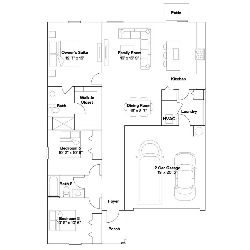
Under Construction. BRAND NEW HOME - This new single-story home maximizes space and emphasizes convenience. The open-concept layout integrates the family room, dining room and kitchen with a central island, facilitating effortless transitions between rooms for easy entertaining during gatherings. On the opposite side of the home are all three bedrooms, including the peaceful owner’s suite with an attached bathroom and walk-in closet. Interior photos disclosed are different from the actual model being built. Nestled in quiet Bartow, FL, Wind Meadows South is a masterplan community with new collections of single-family homes that give great amenities. Spend the day cooling off at the private swimming pool or sunbathe in the cabana area. Bartow is home to numerous attractions and amenities, including the Fort Fraser Trail, nearby golf courses, Front Page Brewing Co. and much more.
Features of 4734 Bold Peacock Bend
| MLS® # | TB8368133 |
|---|---|
| Price | $284,900 |
| Sold Price | $279,900 |
| Sold Date | June 18th, 2025 |
| Bedrooms | 3 |
| Bathrooms | 2.00 |
| Full Baths | 2 |
| Square Footage | 1,487 |
| Acres | 0.13 |
| Year Built | 2025 |
| Type | Residential |
| Sub-Type | Single Family Residence |
| Status | Sold |
Listing Details
| Office | LENNAR REALTY |
|---|
Listing Map
Neighborhood Information for 4734 Bold Peacock Bend
Low Residential Turnover, Suburb of Tampa
Statistics
Number of Listings
Population Age
Home Listings Prices
Nearby Schools
| Great Schools | School Name | Distance | |
|---|---|---|---|
|
Spessard L Holland Elementary School Public - Preschool to 5Th Grade - Closest Elementry School |
1 Miles | |
|
James E. Stephens Elementary School Public - Kindergarten to 5Th Grade |
2 Miles | |
|
Highland City Elementary School Public - Preschool to 5Th Grade |
2 Miles | |
|
Valleyview Elementary School Public - Kindergarten to 5Th Grade |
2 Miles | |
|
Gause Academy Of Leadership Public - 6Th Grade to 12Th Grade |
3 Miles | |
|
Word Of Life Christian School Private - Kindergarten to 12Th Grade - Closest Middle School |
3 Miles | |
|
George W. Jenkins Senior High School Public - 9Th Grade to 12Th Grade - Closest High School |
3 Miles |
School data provided by GreatSchools
