About 4727 Bold Peacock Bend
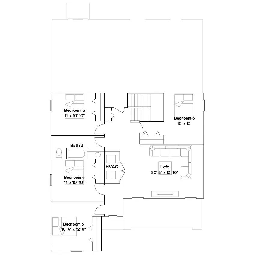
Under Construction. BRAND NEW HOME - The first floor of this two-story home shares an open layout between the kitchen, dining room and family room for easy entertaining and access to a patio. A luxe owner’s suite is in a rear corner of the first floor, while a secondary bedroom is at the front, perfect for overnight guests, as well as a flex space which can transform to meet the homeowner’s needs. Upstairs are four secondary bedrooms and a loft for added living space. Interior photos disclosed are different from the actual model being built. Nestled in quiet Bartow, FL, Wind Meadows South is a masterplan community with new collections of single-family homes that have great amenities. Spend the day cooling off at the private swimming pool or sunbathe in the cabana area. Bartow is home to numerous attractions and amenities, including the Fort Fraser Trail, nearby golf courses, Front Page Brewing Co. and much more.
Features of 4727 Bold Peacock Bend
| MLS® # | TB8356158 |
|---|---|
| Price | $405,990 |
| Sold Price | $405,990 |
| Sold Date | May 30th, 2025 |
| Bedrooms | 6 |
| Bathrooms | 3.00 |
| Full Baths | 3 |
| Square Footage | 3,041 |
| Acres | 0.13 |
| Year Built | 2025 |
| Type | Residential |
| Sub-Type | Single Family Residence |
| Status | Sold |
Listing Details
| Office | LENNAR REALTY |
|---|
Listing Map
Neighborhood Information for 4727 Bold Peacock Bend
Low Residential Turnover, Suburb of Tampa
Statistics
Number of Listings
Population Age
Home Listings Prices
Nearby Schools
| Great Schools | School Name | Distance | |
|---|---|---|---|
|
James W. Sikes Elementary School Public - Kindergarten to 5Th Grade - Closest Elementry School |
1 Miles | |
|
Brilliant Minds Early Learning Academy Private - Preschool to 5Th Grade |
1 Miles | |
|
Old Paths Christian Academy Private - Kindergarten to 11Th Grade - Closest Middle School |
2 Miles | |
|
R. Bruce Wagner Elementary School Public - Preschool to 5Th Grade |
2 Miles | |
|
Huntington Learning Center - Lakeland South Private - to |
2 Miles | |
|
Medulla Elementary School Public - Preschool to 5Th Grade |
3 Miles | |
|
Purcell Elementary School Public - Preschool to 5Th Grade |
4 Miles |
School data provided by GreatSchools
