1322 Sherwood Street, BUNNELL, FL

$354,900

Previous Next

2

Beds

2

Baths

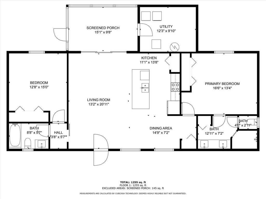
1,373

Square feet

1.14

Acres

About 1322 Sherwood Street

Check out 1322 Sherwood St in Bunnell Florida. Welcome to your dream home! Nestled on a sprawling 1.18-acre lot, this custom-built gem, constructed in 2022, stands as a rare find in the area. Boasting 2 bedrooms and 2 bathrooms, this property offers a perfect blend of comfort and luxury. The practical features include a power hook-up, ideal for modern living, as well as ample parking for RVs with two power hook-ups for the RVs, and other recreational toys. The exclusivity of this residence extends further with additional sheds—a dedicated space for the well and water treatment, and another for tools, adding both functionality and charm. Priced at $354,900, this unique property presents an opportunity to own a piece of paradise. Join us and envision the possibilities of making this house your home. Explore the photos to witness the beauty that awaits you. Don't miss out on this exceptional real estate opportunity!

Features of 1322 Sherwood Street

MLS® # FC308576
Price $354,900
Sold Price $340,000
Sold Date April 30th, 2025
Bedrooms 2
Bathrooms 2.00
Full Baths 2
Square Footage 1,373
Acres 1.14
Year Built 2022
Type Residential
Sub-Type Single Family Residence
Status Sold
Show More Information

Listing Details

OfficeNEXTHOME ENDLESS SUMMER

Listing Map

Neighborhood Information for 1322 Sherwood Street

Very Rapid Population Growth, Moderate Residential Turnover

Weather

Highs


January 68.40℉
July 92.00℉

Lows


January 73.60℉
July 73.60℉
rain icon

Precipitation


49.79

Statistics

Number of Listings

Population Age

Home Listings Prices

Nearby Schools

Great Schools School Name Distance  
Great School

First Baptist Christian Academy

Private - Preschool to 12Th Grade - Closest Elementry School
8 Miles
Great School

Bunnell Elementary School

Public - Preschool to 6Th Grade
8 Miles
Great School

George C. Miller, Junior Intermediate School

Public - 6Th Grade to 8Th Grade - Closest Middle School
8 Miles
Great School

Flagler Virtual Instruction Program

Public - Kindergarten to 8Th Grade
8 Miles
Great School

Iflagler-Virtual Franchise

Public - 6Th Grade to 12Th Grade - Closest High School
8 Miles
Great School

Rymfire Elementary School

Public - Preschool to 6Th Grade
8 Miles
Great School

Middleton-Burney Elementary School

Public - Preschool to 5Th Grade
9 Miles

School data provided by GreatSchools

Request a Showing

Provide a valid email address.
When would you like to view this property?