About 6412 Propel Run
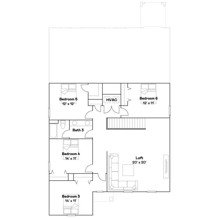
Under Construction. BRAND NEW HOME!! - This two-story home is the largest plan available in the collection. The first floor is brightened by a contemporary open design that unifies the kitchen, family room and dining room. Off the foyer is a versatile bedroom and flex room, while the owner's suite is nested in the back for privacy. Upstairs are the remaining four bedrooms and an expansive loft. Interior photos disclosed are different from the actual model being built. New Port Corners is a new master-planned community of single and multi-family homes for sale in New Port Richey, FL. Residents will enjoy future planned amenities, including a sparkling swimming pool, clubhouse, splash park and more. The community offers proximity to shopping, dining and entertainment in downtown New Port Corners, and nearby Mitchell Ranch Plaza makes it easy to get everyday essentials. There are ample opportunities for outdoor recreation, including nearby golf courses and parks.
Features of 6412 Propel Run
| MLS® # | TB8375319 |
|---|---|
| Price | $473,400 |
| Sold Price | $473,400 |
| Sold Date | May 30th, 2025 |
| Bedrooms | 6 |
| Bathrooms | 3.00 |
| Full Baths | 3 |
| Square Footage | 3,326 |
| Acres | 0.13 |
| Year Built | 2025 |
| Type | Residential |
| Sub-Type | Single Family Residence |
| Status | Sold |
Listing Details
| Office | LENNAR REALTY |
|---|
Listing Map
Neighborhood Information for 6412 Propel Run
Moderate Residential Turnover, Suburb of Tampa
Statistics
Number of Listings
Population Age
Home Listings Prices
Nearby Schools
| Great Schools | School Name | Distance | |
|---|---|---|---|
|
Pace Center For Girls Public - 6Th Grade to 11Th Grade |
1 Miles | |
|
Deer Park Elementary School Public - Kindergarten to 5Th Grade - Closest Elementry School |
1 Miles | |
|
Genesis Preparatory School Private - 6Th Grade to 12Th Grade - Closest Middle School |
1 Miles | |
|
Cotee River Elementary School Public - Preschool to 5Th Grade |
1 Miles | |
|
Baycare Behavioral Health Public - Kindergarten to 12Th Grade |
2 Miles | |
|
Cypress Elementary School Public - Kindergarten to 5Th Grade |
2 Miles | |
|
Fred K. Marchman Technical College Public - Preschool to 12Th Grade |
2 Miles |
School data provided by GreatSchools
