About 695 Peroni Avenue
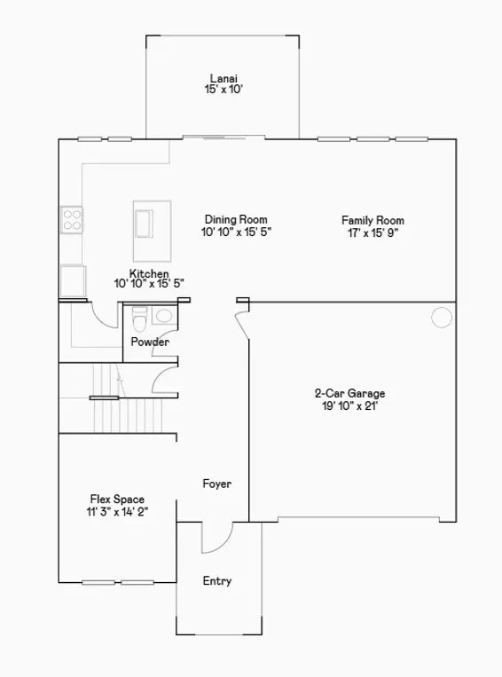
Under Construction. The Allison showcases a gracious design. The first floor features an open layout among a large kitchen, dining room and family room. There is a versatile flex space, perfecto for an office or study. Enjoy the rear lanai for outdoor enjoyment! Ideally situated upstairs to provide maximum privacy are all four bedrooms, including the lavish owner’s suite with an en-suite bathroom and an expansive walk-in closet fit for any fashion enthusiast. Completing the home is an ample two-car garage. Every home comes with Lennar’s Everything’s Included® promise, which includes new appliances as well as quartz countertops, blinds, and more in the price of your home. There are also home automation features such as keyless door locks and video doorbells in the Connected Home by Lennar®. Residents enjoy a relaxing resort style swimming pool, Clubhouse and playground. Enjoy DeBary and nearby nature reserves and parks like Gemini Springs Park for hours of outdoor recreation. With the nearby Sunrail Station, even more is at your fingertips. DeBary is the gateway to southwestern Volusia County, with direct access to I-4 and U.S. Highway 17/92 and serves as a corridor between Orlando, Sanford, and Daytona Beach. It’s what you have been waiting for book at appointment to visit the much anticipated “Rivington”!
Features of 695 Peroni Avenue
| MLS® # | O6315312 |
|---|---|
| Price | $455,889 |
| Sold Price | $455,889 |
| Sold Date | July 21st, 2025 |
| Bedrooms | 4 |
| Bathrooms | 3.00 |
| Full Baths | 2 |
| Half Baths | 1 |
| Square Footage | 2,731 |
| Acres | 0.14 |
| Year Built | 2025 |
| Type | Residential |
| Sub-Type | Single Family Residence |
| Status | Sold |
Listing Details
| Office | LENNAR REALTY |
|---|
Listing Map
Neighborhood Information for 695 Peroni Avenue
Moderate Residential Turnover
Statistics
Number of Listings
Population Age
Home Listings Prices
Nearby Schools
| Great Schools | School Name | Distance | |
|---|---|---|---|
|
Debary Elementary School Public - Preschool to 5Th Grade - Closest Elementry School |
3 Miles | |
|
Holy Cross Lutheran Academy Private - Preschool to 4Th Grade |
3 Miles | |
|
The Rock Academy Private - Kindergarten to 12Th Grade |
3 Miles | |
|
Saint Thomas More Academy Catholic - Kindergarten to 12Th Grade |
4 Miles | |
|
Bentley Elementary School Public - Preschool to 5Th Grade |
4 Miles | |
|
Deltona Middle School Public - 6Th Grade to 8Th Grade - Closest Middle School |
5 Miles | |
|
The Reading Edge Academy Public - Kindergarten to 5Th Grade |
5 Miles |
School data provided by GreatSchools
